发布时间:2025年11月27日 08:48 点击次数: 132次 来源:特达户 作者:沈阳写字楼网小编
90%的客户在选办公室的时候,往往会被一个很重要的需求给带跑偏了,你们知道是哪个吗?今天沈阳写字楼网小编就告诉你们,并帮你们纠正一下。
大部分客户在选办公室的时候有三要素是非常靠前的。面积、价格还有位置,这三点没毛病吧?但是其中面积这块学问真的是很大。接下来呢,牛店长上几张平面图给大家看一下,看看他究竟有多大的门道。

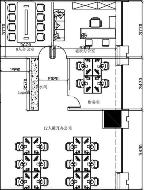
第一张A户型图是一加四的格局,最大的老板办公室有20平的面积,其他三个房间也在十二三平左右,敞开办公区坐下12个人之后,还挺宽敞的,这个看完了,我们看下面第二个户型图。

第二个B户型图,也是一加四的格局,最大的老板是略大一点,那也就20平左右。其中,有一个房间特别的小,敞开办公区呢,也只能坐八组工位,但是还很拥挤。

我们看第三张C户型图,第三张图,是一个1+3的格局,一个20平的老板办公室,加上两个不到15平的办公室,敞开区呢,也能坐12个人。
这三张户型图片我们看完了。光看这三张图片,很明显的可以看出来,第一张要大于第二张和第三张的面积。这三套办公室,都是沈阳写字楼装修公司精装的办公室。第一个是皇朝万鑫148平的,第二个是金融中心的一个164平的,第三个是华航大厦176平的办公室。
听我说完了面积,实际的结果是皇朝万新148平最小,比华航大厦的176平差了30平的表面面积。但是使用率会更高,格局会更好一些,多出来一个屋嘛,很明显,为什么会这样?接下来呢,就是沈阳写字楼网小编今天要跟客户们说的重点了。
因为不管是沈阳写字楼中介还是沈阳办公楼业主或者是商务楼甲方的经理们,跟你们说这个所谓的面积,都是建筑面积,是包含公摊的。因为每一个大厦的公摊是不一样的,包括每一个房间的格局进深的长短还包括开间的长短,甚至柱子在边上还是在中间,都会决定你这个屋最后体现出来的格局是不一样的。
同样的品质的大厦,如果公摊差10%,什么概念?200平就能多出来一个我这么大的老板办公室,所以说,亲爱的客户,你们在选择新的办公室的时候,不要特别的纠结于面积,并不是面积大价格差不多它就越合适。你们更应该看重的是这个房间是否。能容纳下你所要的一些人员,包括规划出来你所要的格局。
如果你看中那两个同级别的大厦,一个一百五六十平米就能满足你的需求,另一个得需要200平才能满足你的需求,为什么我们不租一个一百五六十平的呢?是不是还能给你省下不少的预算呢?