长寿路的瑞安鸿寿坊写字楼惹人关注
,办公室装修也是非常亮眼,加上全套的办公家具用品
,上海市普陀区写字楼出租位于西康路1143号
,项目优势:创新业态 持续构筑 两栋精品 城市广场 空中连廊
。
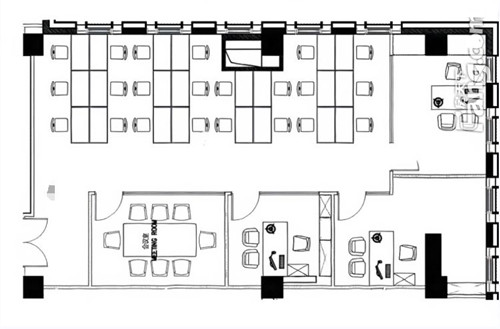
最近,长寿路的瑞安鸿寿坊写字楼惹人关注,据说一套232平米的办公楼租赁房源成为热点,从下面的户型图上可以看出,该上海办公楼出租房屋没有浪费一点面积,基本上都利用上了,一进门就是玄关,外来人员一眼就能看到公司logo背景墙,进来以后就是员工办公位置,能做20多人的工位,而且还具备了会议室、经理室、财务室、茶室等多功能房间,而且办公室装修也是非常亮眼,加上全套的办公家具用品,该上海办公楼租赁房屋想不成网红房源都难。
项目名称:瑞安鸿寿坊写字楼
出租面积:232平米
房屋价格:该上海办公楼价格6元左右
装潢标准:此房由上海办公室公司装修精心设计的一款具有古典主义风格办公室装潢标准。
办公家具:办公楼装潢精美那必须配好的上海办公家具桌椅
房源总结:创新业态 持续构筑 两栋精品 城市广场 空中连廊
鸿寿坊写字楼出租房屋户型图
