环球港写字楼
  • 客服电话:021-31007692
网站首页 关于项目 楼盘详情 项目图片 项目资讯 留言反馈 网站地图 联系我们
当前位置: 首页 / 写字楼租售
  • 主页
  • 办公室租赁
  • 写字楼租售

推荐一个交通便利的上海写字楼租赁房源,品牌办公室装修公司主刀设计
上海办公室装修公司推荐项目      359浏览
项目名称
环球港写字楼
房屋特点
环球港写字楼位于金沙江路地铁口,地理位置好,在租写字楼位实地拍摄,高档上海商务楼装饰标准,上海办公家具公司的座椅。
类别
上海办公室租赁
面积价格
233平方米,商务楼租赁租金5元起
联系人
上海写字楼出租网-陈娇娇
所在地址
上海市出租办公室位于普陀区中山北路3300号
电话:021-31007692
  • 房源介绍
  • 房源图片
  • 房屋地址
    房源介绍

    好的上海办公楼项目,办公家具全包,拎包入住 ,月星集团有限公司开发建设,该上海写字楼出租房屋外观设计灵感来自于形神相似的超级豪华游轮,整个建筑群体设计充满了视觉的张力,力图创造一种艺术的、多元文化的现代都市中的办公、购物、休闲中心。此房是上海办公楼中介公司宛耀飞和陈娇娇强力推荐的高楼大厦,主要是环球港写字楼租赁位置好 ,上海市普陀区办公楼租赁位于中山北路3300号 ,项目优势:点评大厦: 多元业态 配套完善 甲级标准 位置重要 。

    上海写字楼租赁,环球港办公楼出租房屋位于普陀区中山北路3300号,商务楼地处中心城区静安、长宁、普陀三区结合处。东接凯旋路,北临白兰路,南侧为宁夏路。办公楼与轨交3、4、13号线金沙江路站无缝对接,该上海写字楼租赁房源交通便利。

    租赁面积:该上海办公室租赁面积为200平米

    租金价格:办公室出租价格为33000元/月

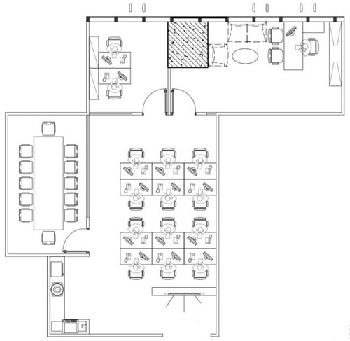
    户型格局:一个大会议室(目前里面放的是办公桌),一个财务室,一个经理室,两个办公区,进办公室有玄关,有员工操作台。

    该上海写字楼租赁房屋户型图

    办公装修:品牌上海办公室装修公司主刀设计

    办公家具:全套上海办公家具公司提供办公椅

    找上海写字楼租赁房源用户联系我时,请说是在环球港写字楼网上看到的,谢谢!

    房源图片
    查看全部图片
    房屋地址
    上海市出租办公室位于普陀区中山北路3300号
房屋租售
更多 >
推荐一个交通便利的上海写字楼租赁房源,品牌办公室装修公司主刀设计
上海甲级写字楼出租,普陀区中山北路3300号,办公家具市场的高档桌椅
此房是上海办公家具厂家定制桌椅,而且商务楼装修非常有讲究
友情链接:
网站首页 留言反馈 网站地图 联系我们

邮箱:mayl@yuexing.com

项目地址:上海市普陀区凯旋北路1188号

办公室租赁,写字间招租,环球港写字楼招商电话:021-35382199,021-31007692。 京ICP备2025148167号-1 京公网安备 11011402054848号 技术支持:特达户