当前位置: 首页 / 前滩国际广场 / 办公室租售
前滩国际广场4200平米办公楼可分割,上海办公室租赁整层商务楼推荐
上海写字楼中介陈娇娇      414浏览
价       格6元/㎡/天
面       积4200㎡
项目名称
前滩国际广场
房屋特点
浦东高档商务楼出租
房屋来源
上海写字楼网
所在商圈
浦东新区 - 前滩商圈
装修标准
办公室装修为原始交付,可做办公楼装潢设计
详细地址
上海市浦东新区企荣路90号
电话:021-31007692
    描述

    浦东高档商务楼出租,上海写字楼网推荐 ,办公室装修为原始交付,可做办公楼装潢设计,整层出租,有上下水,没有办公家具 ,上海市商务楼租赁位于浦东新区企荣路90号 ,项目优势:商务地标 生态办公 重点开发 引领未来 城市发展 。

    上海商务楼出租,前滩国际广场-7F整层办公室租赁(4200平性价比大平层办公室租赁,整层出租,有上下水,没有办公家具)

    ★基本信息

    项目名称:前滩国际广场

    项目地址:上海市浦东新区企荣路90号、杨思西路50号

    ★项目亮点

    交通方便:该上海办公室租赁房源位于19号线地铁上盖;6、8、11号线东方体育中心站步行300米;

    办公环境:视野通透+高得房率;

    配套完善:核心商圈配套齐全,有L+PLAZA、太古里商业、香格里拉、雅辰、美居酒店、31文化演艺中心等;

    名企入驻:优质企业入驻该上海商务楼项目,有葛兰素史克、赫力昂、英国石油、百特医疗、瑞慈医疗等知名企业入驻。

    ★房源信息

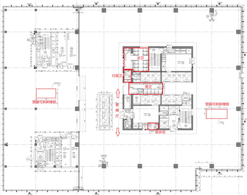
    租赁物业:7F整层(办公楼租赁面积可分割)

    租赁面积:4296.19平方米(建面)

    租金报价:人民币6.5元/平方米/天(含9%增值税)

    物业收费:物业费为人民币40元/平方米/月(含6%增值税)

    交付状态:该上海办公室租赁房屋为现房,标准交付

    公区配置:男卫(5+7)、女卫(10)、行政卫(配淋浴)、茶水间

    楼层预留:该上海商务楼出租房屋预留可拆卸楼板、上下水接口、幕墙通风器

    房源亮点:国际商务新地标、生态办公新典范、重点开发区域之一、引领未来城市发展、前滩的华丽转身

    图片
    查看全部图片
    户型
    查看全部户型
    位置
    上海市浦东新区企荣路90号
新闻资讯
友情链接: