欢迎访问上海中信泰富广场网站
咨询电话:021-31007692
中文版 英文版
首页 > 招商中心 >
香港集团推出的上海写字楼出租,大型国际化一流高标准商业大楼
上海写字楼网推荐      29浏览
价       格8元/平方米/天
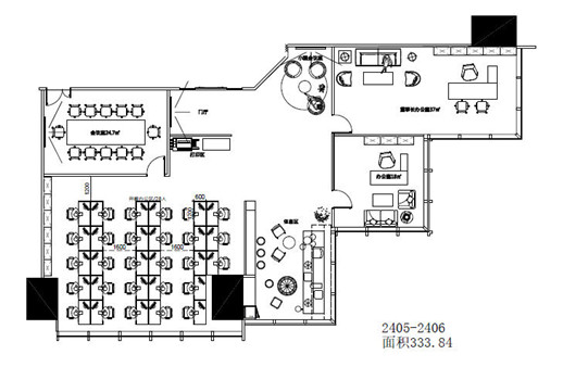
面       积333.84平方米
项目名称
上海中信泰富广场
房屋特点
该上海办公楼出租项目交通极为便捷,公交线路四通八达,步行至新贯通的地铁2号线仅五分钟
房屋来源
静安区办公楼
所在商圈
静安-北京西路
装修标准
上海高级办公楼装修标准
室内配置
提供全套办公家具
详细地址
上海市静安区南京西路1168号
电话:021-31007692
    描述

    静安区高端写字楼出租 ,静安区高端写字楼出租,中信泰富广场总建筑面积约770,000平方尺甲级商厦连370,000平方尺购物商场,中信泰富广场座落于南京西路最繁盛的商业中心 ,从中信泰富广场出发,步行往地下铁路入口只需五分钟 ,项目优势:金融核心 交通发达 布局灵活 卓越硬件 500强企 。

    中信泰富广场项目是由中国国际信托投资(香港集团)有限公司,太古地产有限公司和上海静安城商贸总公司合资兴建的大型国际化一流高标准商业大楼。

    地址:上海市静安区南京西路1168号

    交通:2号线、12号线、13号线南京西路站

    电梯:客梯18部(迅达智能派梯系统)     

    消防梯2部

    空调:V.A.V空调系统

    工作日:周一至周五:早8:00--晚19:00

    周六:早8:00--午12:00

    机房:24小时冷却水

    商业配套

    【精装样板间--2405-2406室333.84平米】

    工位布局:经理室*1、会议室*1、

    财务室*1、员工位*28、会客区*1

    租金(含税5%):8.00元/平米/天

    精装服务费(含税1%):1.50元/平米/天

    物业费(含税6%):39.50元/平米/月

    月总计:该上海写字楼出租房屋月租金价格为111,097.32元

    图片
    查看全部图片
    户型
    查看全部户型
    位置
    上海市静安区南京西路1168号
联系我们

一、中信泰富广场项目联系方式

区域商圈:静安区-北京西路板块

板块编号:361070182

楼盘地址:上海市静安区南京西路1168号

地理坐标:121.45126,31.2298

项目网址:www.tedahu.com/zhongxintaifu/shzxtf/

邮政编码:200041

电子邮箱:jast993@163.com

联系电话:021-55692859,021-31007692

二、中信泰富广场企业联系方式

1、中信银行(中信泰富广场)

地址:上海市静安区南京西路1168号中信泰富广场F1

电话:(021)52925007

2、蘩楼(中信泰富广场店)

地址:上海市静安区南京西路1168号5楼516室

电话:(021)58768889

3、西太后(中信泰富广场店)

地址:上海市静安区南京西路1168号中信泰富广场F2

电话:(021)61601682

4、澳大利亚上海领事馆

地址:上海市静安区南京西路1168号中信泰富广场22楼

电话:(021)22155200

5、昆士兰州政府贸易投资机构上海代表处

地址:上海市静安区南京西路1168号中信泰富广场37层3709~3710号

电话:(021)52929090

6、TU

地址:上海市静安区南京西路1168号中信泰富广场302号

电话:15502198217

7、广诚表行(梅龙镇广场店)

地址:上海市静安区南京西路1168号

电话:15313104467

8、萝贝拉(上海)商贸有限公司

电话:021-60871728

邮箱:yolanda.liu@laperla.com

地址:上海市静安区南京西路1168号2306、2307室

9、上海潍钢国际贸易有限公司

电话:18763601999

邮箱:lyx198706@126.com

地址:上海市静安区南京西路1168号中信泰富广场2106室

10、朝日啤酒(中国)投资有限公司

电话:021-52929952更

邮箱:daiwenbi@asahibeer.co.jp

地址:上海市静安区南京西路1168号中信泰富广场3505B-3509室

11、中信泰富广场物业公司

地址:上海市静安区南京西路1168号

电话:(021)56661888,(021)62180180

12、上海中信泰富广场有限公司

地址:上海市静安区南京西路1168号中信泰富广场1306单元

电话:(021)62180180

13、上海瀚欣投资有限公司

电话:021-64540053

邮箱:sssyyy00@sina.com

地址:上海市静安区南京西路1168号2106室

通信地址:上海市静安区南京西路1168号中信泰富2106室

14、恩思恩时尚(中国)商贸有限公司

电话:021-33660368

邮箱:edith.tang@mcmworldwide.com

通信地址:上海市静安区南京西路1168号3801-3804A

15、财税家信息科技(上海)有限公司

电话:021-62781413

邮箱:helper.info@hicgglobal.com

地址:上海市静安区南京西路1168号中信泰富广场39层3912室

16、讯动体育管理咨询(上海)有限公司

电话:021-32144518

邮箱:wuwx@cnsportsmedia.com

地址:上海市静安区南京西路1168号中信泰富广场1406室

17、德事(上海)商务服务有限公司

电话:021-52524618

邮箱:shanghai@executivecentre.com

地址:上海市静安区南京西路1168号中信泰富广场4214室

18、澳达理财务咨询(上海)有限公司

电话:021-22139850

邮箱:frances.gong@cpaaustralia.com.au

地址:上海市静安区南京西路1168号中信泰富广场4003-4004室

19、酷彩法厨商贸(上海)有限公司

电话:021-63720505

邮箱:eluo@lecreuset.com

地址:上海市静安区南京西路1168号中信泰富广场19层1911单元

20、克莱利亚尼(上海)商贸有限公司

电话:021-53868679

邮箱:clu@corneliani.com

地址:上海市静安区南京西路1168号中信泰富广场第11层1110室

21、弗科斯航空技术(上海)有限公司

电话:15001046646

邮箱:x.zhang@test-fuchs.com

地址:上海市静安区南京西路1168号中信泰富广场4282室

22、广酒(上海)餐饮管理有限公司

电话:13544551374

邮箱:gzjjzxtf@gzr.com.cn

地址:上海市静安区南京西路1168号中信泰富广场502、504室


邮箱:jast993@163.com

项目地址:上海市静安区南京西路1168号

上海中信泰富广场位于静安区南京西路1168号,距离2号线、12号线、13号线南京西路站1号口约340米,距离2号线、7号线、14号线静安寺站6号口约800米。 京ICP备2025148167号-1 京公网安备 11011402054848号 技术支持:特达户