当前位置: 首页 / 永兴商务广场 / 图片房源
上海甲级办公楼招租,永兴商务广场写字楼招商详情
静安区写字楼出租平台      318浏览
价       格4.5元/㎡/天
面       积187-2347㎡
项目名称
永兴商务广场
房屋特点
静安甲级写字楼
房屋来源
上海写字楼网
所在商圈
出租办公室187-2347平方米
装修标准
静安区装修公司严阵以待,随时可以进场装潢设计办公室
室内配置
很多上海办公家具厂家都在这里有合作协议
详细地址
上海市静安区虬江路1355弄1-6号
电话:021-31007692
    描述

    定制上海办公室装修标准与上海办公家具桌椅 ,该上海办公楼出租房屋周边立体交通网络体系发达,联通三条轨道交通;共享南北高架及北横通道。步行至轨交8号线中兴路站3号口约6分钟,步行至1、3、4号线宝山路站约15分钟,10分钟车程至人民广场商圈,30分钟接驳虹桥机场,5分钟车程即达上海火车站 ,上海市办公室租赁位于静安区虬江路1355弄1-6号 ,项目优势:项目看点: 租金合理 加装空调 停车便宜 交通方便 。

    【永兴商务广场写字楼招商详情】

    静安区国企开发,品质保证,内环内稀缺商办该静安写字楼出租项目

    该静安写字楼出租项目地址 :上海市静安区虬江路1355弄

    【该静安写字楼出租项目亮点】

    • 品牌:国有上市公司西藏城投(股票代码:600773)控股,上海国投置业有限公司荣誉出品 ,高品质综合商办该静安写字楼出租项目,区域内(芷江西路街道)独有的百米高楼、地标建筑

    • 交通:立体交通网络体系:联通5条轨道交通;共享南北高架及北横通道

    • 硬件:现代简约外观,石材干挂凸显档次;公区高标准装修,9.4米挑空大堂进出,4米标准层高,尽享奢华宽阔的办公尺寸;三层中空玻璃,隔热隔音;四高四低八部三菱快速客梯,高效便捷;地下两层车库,车位配比充足;68%得房率,高于同类竞品

    • 配套: 约5500平方米左右专属商业配套,提供全方位尊贵享受

    • 物业:悦佳物业管理,高标准服务保障,舒心的关怀感受,物业费32元/平米/月

    【该静安写字楼出租项目区位】

    该静安写字楼出租项目属于苏河湾功能区板块沿线商务区。南向为南京东路商圈,北向为静安大宁商圈,西向为不夜城商圈,是内环内闹中取静的一个商务综合体。

    【交通配套】

    轨交旁,立体交通速达全城,畅达长三角

    • 步行至轨交8号线中兴路站3号口约5分钟

    • 步行至1、3、4号线上海火车站约15分钟

    • 5分钟车程即达上海火车站

    • 10分钟车程至人民广场商圈

    • 30分钟接驳虹桥机场

    • 高铁辐射长三角

    【该静安写字楼出租项目面积】

    ·办公面积段187-2347平方米

    ·商业面积段365-3348平方米

    【1号楼简介】

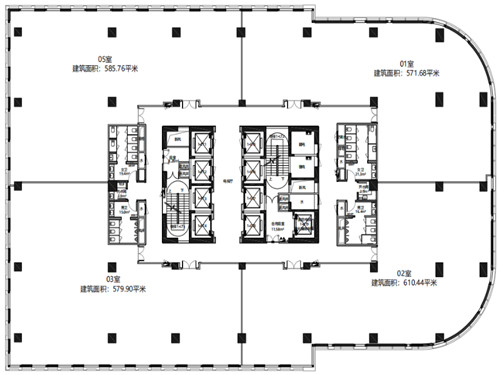
    1号楼大堂面积约460㎡,大堂挑空9.4米,标准层层高4米,得房率68%。可租楼层6-24层,标准层面积6-10层为2347㎡,11-24层1648㎡;目前6-10层为小面积分割,面积段187-308㎡,10层分割面积段571-610㎡,11-24层分割面积段548-550㎡。1号楼交付标准为公区精装,办公区简装。

    【3号楼简介】

    3号楼可租楼层为1层的商业1(365.58㎡)、商业3(386.29㎡),交付标准为毛坯。 3号楼商业意向租赁咖啡、食堂、轻餐饮、健身、超市等业态。

    【4号楼简介】

    4号楼整栋可租,面积3348.92㎡,位置优越,位于育婴堂路永兴路路口,可做重餐饮。交付标准为毛坯。 4号楼意向租赁大型餐饮、公司总部大楼、私人医院等业态。

    图片
    查看全部图片
    户型
    查看全部户型
    位置
    上海市静安区虬江路1355弄1-6号
新闻资讯
友情链接: