当前位置: 首页 / 城建国际中心 / 写字楼租售
好的上海办公室出租房屋推荐,浦东整层办公房型方正,采光充足
上海写字楼租售网      371浏览
价       格5.4元/㎡/天
面       积1905㎡
项目名称
城建国际中心
房屋特点
上海整层办公室出租
房屋来源
出租办公室平台
所在商圈
浦东新区-竹园商圈
装修标准
可定制高档的上海写字楼装修标准,包括隔断和会议室
室内配置
目前是空房出租,可定制上海办公家具
详细地址
上海市出租办公楼位于浦东新区福山路500号
电话:021-31007692
    描述

    写字楼出租面积从163平米起租,租金报价在4.5至8元不等 ,无论是初创企业还是成熟公司,都能在该上海办公室里租赁房屋内找到合适的办公空间。城建国际中心出租的办公房的空间设计灵活多变,可以根据上海租办公楼客户的实际需求进行调整和定制 ,上海市办公室租赁位于浦东新区福山路500号 。

    好的上海办公室出租房屋推荐,福山路500号城建国际中心地理位置优越,地处陆家嘴竹园商贸区福山路、浦电路交汇处,东邻世纪大道,南接竹园公园,西接东方路轻轨。该上海办公室出租房屋紧邻世纪公园、东方艺术中心以及上海科技馆等文化娱乐中心,上海租办公楼客户可尽揽竹园超大绿地。找上海整层商务楼的客户可来本项目一探究竟。

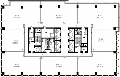
    基本情况:城建国际中心整层办公室出租,共1905平位于4号线浦电站,有露台

    商圈楼盘:竹园商圈,福山路500号城建国际中心

    本套面积:267平方米,558平方米,1905平方米(整层)

    租金报价:4.5-8元/㎡/天

    公共交通:距离/6/9/2/4号线浦电路1号口150米,大厦楼下十几条公交线路

    房屋格局:加高区、东南双朝向,办公房型方正,采光充足

    装修标准:可定制高档上海办公楼装潢标准,为你省时力

    办公家具:租金价格合理的情况下,房东可配上海办公家具公司的产品

    免租时间:福山路500号城建国际中心业主直租,免费赠送免租期,条款好谈,物业整洁、认真、负责!

    看房时间:随时来电,随时看房,随时入住

    周边配套:中油阳光大酒,浦东假日酒店,浦东税务大厦,世纪汇广场!

    员工就餐:该上海办公室出租房屋附近有老娘舅(新天国际大厦店)、清真燕蘭楼西北新疆美食、星巴克(城建大厦店)、小团圆湘菜(东方路店)、NOWWA挪瓦咖啡(城建国际中心店)、苏味铃蘭、猪角·闽南猪脚饭(浦电路店)、塔斯汀中国汉堡(一百杉杉店)、娇五旺·头牌冒烤鸭(世纪联华店)、胡万串饼(东方路店)等餐饮店面,可满足入驻企业员工就餐问题。

    图片
    查看全部图片
    户型
    查看全部户型
    位置
    上海市出租办公楼位于浦东新区福山路500号
新闻资讯
友情链接: