当前位置: 首页 / 上海中海中心 / 写字楼租售
中海中心F座配套商铺,上海独栋甲级写字楼出租信息
上海办公楼中介提供      484浏览
价       格5-8元/㎡/天
面       积946-1893㎡
项目名称
中海中心F座
房屋特点
普陀独栋办公楼出租
房屋来源
写字楼租售平台
所在商圈
普陀区-真如商圈
装修标准
毛坯房交付
室内配置
上下水
详细地址
上海市普陀区曹杨路1232号、1236号
电话:021-31007692
    描述

    独栋办公楼招租,TOD中海环宇城MAX商业综合体,中海中心为航母级商务旗舰,约230米超甲级双子地标主塔写字楼最为醒目 ,项目办公部分共有6栋写字楼,目前对外租赁的为A、C、F栋;对外销售的为B、D、E栋,其中B栋和D栋为整栋销售,E栋拆分销售 ,项目各栋座目前均已陆续交付投入运营使用,在租独栋办公楼位于普陀区曹杨路1256号 。

    中海中心F座配套商铺:项目自带商城环宇城MAX,地铁11号线14号线真如站与项目商场直通,为写字楼内的人员及周边居民提供了便捷的购物、餐饮、休闲娱乐等消费场所。

    地址:中国上海市曹杨路1232号、1236号、1242号、1250号、1226弄9号

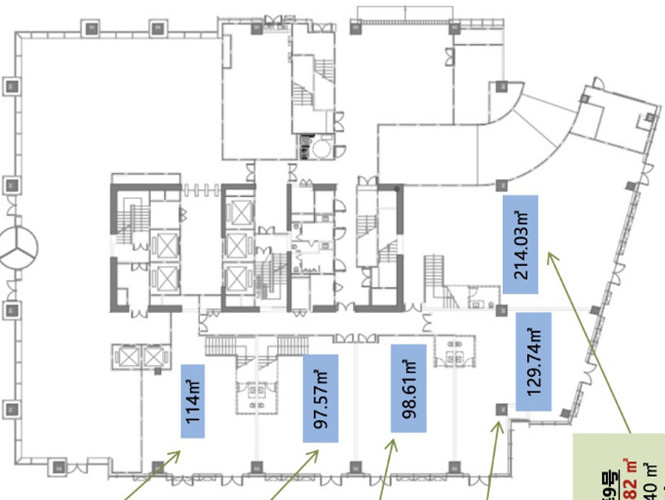
    租赁面积:该上海独栋写字楼建筑面积167.19㎡-946.22㎡,两层1893㎡

    物业公司:该上海独栋写字楼项目由中海物业负责管理

    租金:1楼7.0-8.0元/㎡/天,2楼5.0-6.0元/㎡/天

    物业费:40元/㎡/月

    付款方式:押三付一

    电梯:客梯4部,转换梯2部,货梯1部

    车位:142个

    总建筑面积:2.29万平方米

    总层数:地上14层,地下2层

    层高:该上海独栋办公楼1楼4.3m;2楼4.3m

    【中海中心项目特色】

    1.长三角会客厅核心地段,真如副中心重点百万方城市综合体,涵盖地铁/商场/写字楼/人才公寓/文化剧院/公园绿廊/山姆会员店/住宅等多重业态

    2.内环旁G2京沪桥头堡,双地铁上盖5轨交汇

    3.央企中海地产联手国际设计单位SOM,打造230米普陀天际线地标写字楼

    4.由国内最大单一业权写字楼管理者--中海商务运营

    【中海中心交通配套】

    11号线、14号线真如站地铁上盖;15/7/11/14/20号线五轨环绕

    约9km→虹桥国际机场/虹桥火车站;约3.5km→上海火车站;约1.5km→上海西站

    联系人:上海思创德物业管理有限公司陈娇娇

    图片
    查看全部图片
    户型
    查看全部户型
    位置
    上海市普陀区曹杨路1232号、1236号
新闻资讯
友情链接: